For Sale
£600,000
Located in a very tranquil residential setting the heart of Bermondsey, moments from iconic markets, and a short walk away from Bermondsey Underground Station as well as the greenery of Southwark Park. is this beautiful three bedroom semi-detatched freehold house.
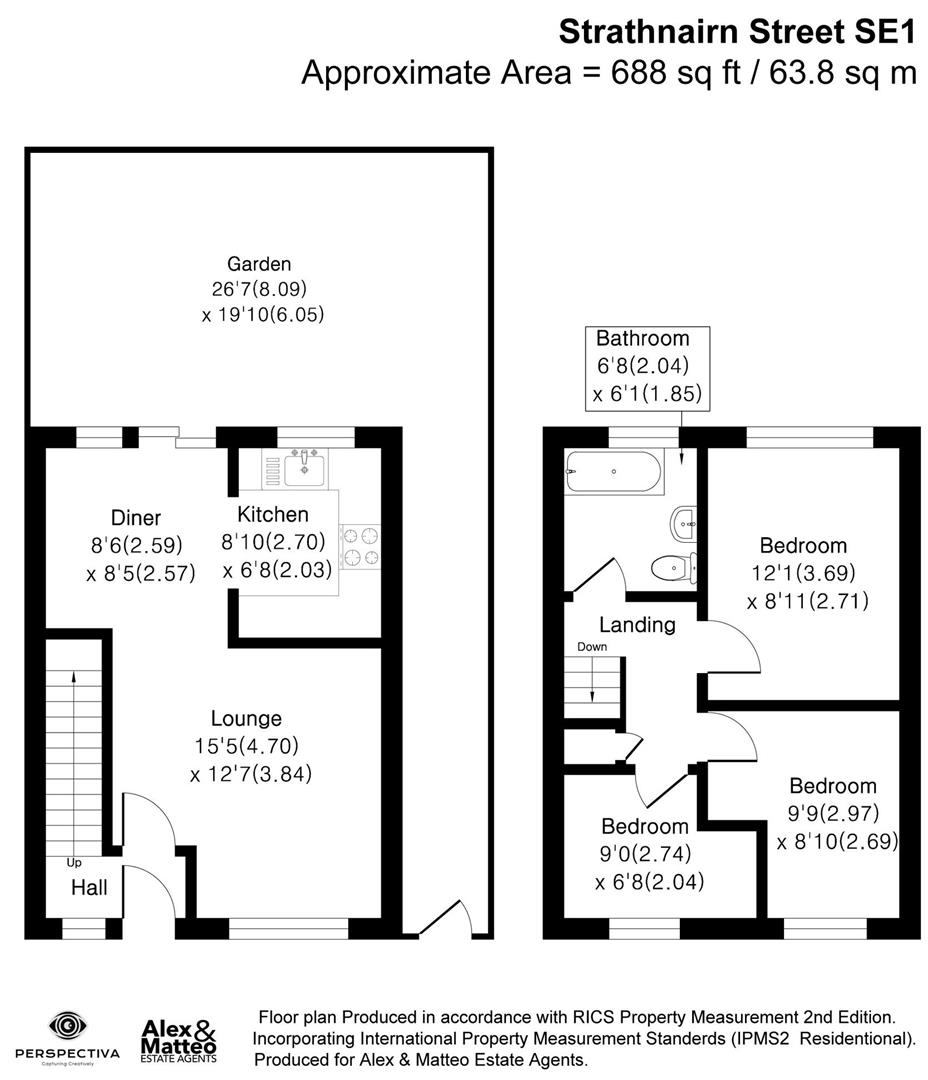
The ground floor features a naturally bright living and dining room with access to a large private south facing garden, as well as a separate well-kept kitchen with plenty of storage space. The first floor boasts three bedrooms, one currently being used as a study and music room, as well as a tidy family bathroom. Additional storage can be found on the landing. Additional benefits include an insulated loft with scope for extension and dedicated car parking space.
The surrounding area boasts a plethora of local amenities such as bars, cafes, supermarket and restaurants, as well as benefits from good bus links. The property is a short walk away from the Biscuit Factory regeneration project.
Freehold
Council Tax Band -D